Данный проект является типовым. Мы можем сделать разные вариации проекта специально под Ваши пожелания.
ХАРАКТЕРИСТИКИ
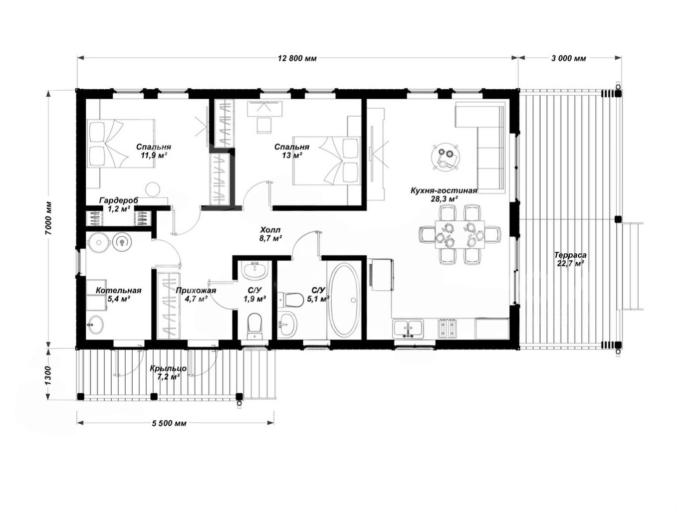
Жилая площадь: 81 м2
Площадь застройки: 111 м2
Комнат: 2
Санузлов: 2
Сроки строительства (под ключ): 3 месяца
WHITE BOX
6 720 000 ₽
В ИПОТЕКУ (WHITE BOX)
37 333 ₽/мес
КОМПЛЕКТАЦИИ
Планировка
Описание
Идеальный баланс цены и свободы.
Дом полностью готов снаружи и оснащён инженерными коммуникациями внутри. Стены — гипсокартон в два слоя, пол — ровная бетонная стяжка под любую отделку, санузлы — влагостойкий ГКЛ.
Вы получаете надёжную основу, чтобы оформить интерьер на свой вкус. Свобода дизайна без компромиссов по качеству.
White Box — это дом, готовый к воплощению ваших идей.
В стоимость входит:
ФУНДАМЕНТ
ЖБ сваи 150х150х3000мм
Дополнительные опции:
- Металлические сваи (в случае, если не позволяют геологические исследования земельного участка использовать ЖБ-забивные
- Монолитная плита
- УШП (утепленная шведская плита)
УТЕПЛЕНИЕ
Используется экологически чистый утеплитель Rockwool - негорючая изоляция из каменной ваты.
Утепление пола: 200мм (при свайном фундаменте)
Утепление стен: 150мм
Утепление кровли (потолка): 200мм
Для защиты утеплителя используется:
- Высококачественная ветро-влагозащитная и пароизоляционная мембрана кровли и стен JUTA (Ютавек, Чехия) или аналогичная высшего качества. Оставляются закладные пароизоляции для непрерывного контура дома.
- Проклейка плёнок и мембран скотчем Delta (Германия) или Sitko (Финляндия).
Сетка от грызунов под весь дом и вентилируемый зазор стен
Дополнительные опции:
- Доп.утепление стен, пола и кровли
- Утепление стен/кровли снаружи ветрозащитными шумоизоляционными плитами МДВП 25мм (Белтермо)
НАРУЖНАЯ ОТДЕЛКА
Наружная отделка:
Вариант 1: Скандинавская фасадная доска 20х140мм окрашенная в заводских условиях, грунтовка + 2 слоя краски
*Срок эксплуатации покрытия от 8 лет (подтвержден лабораторией)
Монтаж открытым способом на гвозди горячего цинкования
Оформление свесов крыши, окон, углов дома - доска/планкен 20х95/120мм окрашенная в заводский условиях.
Вариант 2: Металлопрофиль Barn-ST-15 матовый, толщиной 0,5мм с полимерным покрытием
Настил террасы: Террасная доска вельвет/палуба
Монтаж открытым способом на саморезы Spax или Camo
ВНУТРЕННЯЯ ОТДЕЛКА
Полы: OSB 22мм, гидроизоляция, полусухая стяжка 6см
Стены: Гипсокартон 12.5мм в 2 слоя
Потолки: без отделки
Отделка Санузлов:
стены - Влагостойкий гипсокартон 12.5мм
ЭЛЕКТРИЧЕСТВО
Скрытая разводка негорючим кабелем в ПВХ гофре;
Монтаж распределительного щита;
Монтаж УЗО (на мокрые точки) и автоматов (марки IEK или аналог);
5 точек на помещение (3 розетки, выключатель, освещение);
Отдельный усиленный вывод под эл. плиту на кухне;
Вывод освещения и установка розетки на террасу;
Сечения кабелей:
3,0×2,5 мм – розетки.
3,0×1,5 мм – выключатели.
3,0×4,0 мм – силовые линии.
Автоматы:
10А (2 группы), 16А (4группы), вводное УЗО, вводной автомат (Вводной автомат и УЗО в зависимости от подающейся мощности (220 или 380) на дом 25А или 40А)
Дополнительные опции:
- Увеличение количества точек на помещение
ВЕНТИЛЯЦИЯ
Приточно-вытяжная система.
Приток - через клапана инфильтрации воздуха;
Отток - через вентиляционные выходы;
Воздуховод: пластиковый, гофра алюминиевая;
Продухи для чердачного помещения;
КАРКАС
Силовой каркас собирается по финской каркасной технологии, на основе конструктивной части проекта и в соответствии с СП 31-105-2002.
Используется калиброванная доска в строгом соответствии с ГОСТ 8486-86 «Пиломатериалы хвойных пород» камерной сушки (размерами 20-30-40-45 на 95-145-195мм).
Нижняя обвязка свай: балка 135х195мм, из 3-х досок 45х195мм
Лаги перекрытий: доска 45х195мм
Стойки: доска 45х145мм
Укосины: доска 20х95мм
Стропильная система: доска 45х195мм
Черновой пол/обрешетка: доска 20х95; шаг 200/300мм
Обработка нижней обвязки дома - антисептирующей огне-биозащитой Neomid
Расстояние между лаг, стоек и стропил - до 590мм
КРОВЛЯ
Металлочерепица Stinergy, GrandLine, Уникма, или профлист Barn-SТ-15 (в зависимости от паспорта проекта) толщиной 0,5мм с полимерным покрытием;
Устройство обрешетки и контр-обрешетки;
Вентиляция подкровельного пространства 50мм
Свесы кровли: согласно паспорта проекта. При их наличии: выступ 400мм, подшивочная доска свесов 20х95мм, окрашенная в заводских условиях (цвет в соответствии с паспортом проекта), монтируется по технологии, предусматривающей вентиляцию подкровельного пространства.
Комплект металлической водосточной системы Stinergy, GrandLine или аналоги;
Кровельная безопасность - комплект системы снегозадержания
Вентиляция - изолированные выходы на кровлю VILPE на кухне и в СУ + вентиляция фанового стояка (канализации);
Дополнительные опции:
- Кровля Кликфальц
- Гибкая черепица Docke или Технониколь
- Принудительная система вентиляции - клапан приточный Vilpe + Вентилятор Vilpe + Регулятор Eco
ОКНА ДВЕРИ
Окна REHAU профиль 70мм стеклопакет двухкамерный, фурнитура Roto, москитные сетки, ламинация снаружи (цвет в соответствии с паспортом проекта), установка «под ключ».
Дверь входная: ПВХ со стеклом Rehau doors 70мм либо металлическая Термо Профи с терморазрывом установка «под ключ».
Дверь на террасу - ПВХ, двухкамерный стеклопакет
Дополнительные опции:
- Двусторонняя ламинация окон, увеличение толщины профиля окон, использование безрамного остекления согласно паспорту проекта.
ОТОПЛЕНИЕ
Отопление радиаторами.
Электрический котел Thermex Boss Wi-Fi (аналог с мощностью в соответствии с паспортом проекта).
Обвязка котельной - армированный полипропилен открытого монтажа;
Разводка по дому - «скрытая» разводка трубами из сшитого полиэтилена в термоизоляционной защите. Система отопления включает в себя: фитинги, крепления, краны, мех. фильтр и пр.,
Монтаж радиаторов отопления согласно паспорта проекта «под ключ».
Можно дополнить, либо заменить на:
- Тёплый пол (жидкостный) по всей площади дома;
Система теплого пола включает в себя: трубы - сшитый полиэтилен, сетка, крепеж, подложка фольгаизол, коллекторная группа с расходомерами и пр. «под ключ» согласно проекта.
ВОДОСНАБЖЕНИЕ И КАНАЛИЗАЦИЯ
Обвязка ХВС и ГВС в тех. помещении - армированный полипропилен открытого монтажа;
Установкой циркуляционного насоса (гвс) с выводом на бойлер 150л
Разводка по дому - скрытая разводка трубами из сшитого полиэтилена в термоизоляционной защите;
Выводы на все «мокрые точки»: унитаз, раковины, душ/ванну (с подключением по проекту), посудомоечную и стиральную машину.
Канализация внутренняя: трубы ПВХ 50мм и 110мм в вспененном утеплителе, фитинги, крепления, выводы под все «мокрые точки» «под ключ» с вводом в эксплуатацию.
Монтируется под основанием дома на кронштейнах.
Дополнительные опции:
- Вывод поливочного крана на улицу
ФУНДАМЕНТ
ЖБ сваи 150х150х3000мм
Дополнительные опции:
- Металлические сваи (в случае, если не позволяют геологические исследования земельного участка использовать ЖБ-забивные
- Монолитная плита
- УШП (утепленная шведская плита)
КАРКАС
Силовой каркас собирается по финской каркасной технологии, на основе конструктивной части проекта и в соответствии с СП 31-105-2002.
Используется калиброванная доска в строгом соответствии с ГОСТ 8486-86 «Пиломатериалы хвойных пород» камерной сушки (размерами 20-30-40-45 на 95-145-195мм).
Нижняя обвязка свай: балка 135х195мм, из 3-х досок 45х195мм
Лаги перекрытий: доска 45х195мм
Стойки: доска 45х145мм
Укосины: доска 20х95мм
Стропильная система: доска 45х195мм
Черновой пол/обрешетка: доска 20х95; шаг 200/300мм
Обработка нижней обвязки дома - антисептирующей огне-биозащитой Neomid
Расстояние между лаг, стоек и стропил - до 590мм
УТЕПЛЕНИЕ
Используется экологически чистый утеплитель Rockwool - негорючая изоляция из каменной ваты.
Утепление пола: 200мм (при свайном фундаменте)
Утепление стен: 150мм
Утепление кровли (потолка): 200мм
Для защиты утеплителя используется:
- Высококачественная ветро-влагозащитная и пароизоляционная мембрана кровли и стен JUTA (Ютавек, Чехия) или аналогичная высшего качества. Оставляются закладные пароизоляции для непрерывного контура дома.
- Проклейка плёнок и мембран скотчем Delta (Германия) или Sitko (Финляндия).
Сетка от грызунов под весь дом и вентилируемый зазор стен
Дополнительные опции:
- Доп.утепление стен, пола и кровли
- Утепление стен/кровли снаружи ветрозащитными шумоизоляционными плитами МДВП 25мм (Белтермо)
КРОВЛЯ
Металлочерепица Stinergy, GrandLine, Уникма, или профлист Barn-SТ-15 (в зависимости от паспорта проекта) толщиной 0,5мм с полимерным покрытием;
Устройство обрешетки и контр-обрешетки;
Вентиляция подкровельного пространства 50мм
Свесы кровли: согласно паспорта проекта. При их наличии: выступ 400мм, подшивочная доска свесов 20х95мм, окрашенная в заводских условиях (цвет в соответствии с паспортом проекта), монтируется по технологии, предусматривающей вентиляцию подкровельного пространства.
Комплект металлической водосточной системы Stinergy, GrandLine или аналоги;
Кровельная безопасность - комплект системы снегозадержания
Вентиляция - изолированные выходы на кровлю VILPE на кухне и в СУ + вентиляция фанового стояка (канализации);
Дополнительные опции:
- Кровля Кликфальц
- Гибкая черепица Docke или Технониколь
- Принудительная система вентиляции - клапан приточный Vilpe + Вентилятор Vilpe + Регулятор Eco
НАРУЖНАЯ ОТДЕЛКА
Наружная отделка:
Вариант 1: Скандинавская фасадная доска 20х140мм окрашенная в заводских условиях, грунтовка + 2 слоя краски
*Срок эксплуатации покрытия от 8 лет (подтвержден лабораторией)
Монтаж открытым способом на гвозди горячего цинкования
Оформление свесов крыши, окон, углов дома - доска/планкен 20х95/120мм окрашенная в заводский условиях.
Вариант 2: Металлопрофиль Barn-ST-15 матовый, толщиной 0,5мм с полимерным покрытием
Настил террасы: Террасная доска вельвет/палуба
Монтаж открытым способом на саморезы Spax или Camo
ОКНА ДВЕРИ
Окна REHAU профиль 70мм стеклопакет двухкамерный, фурнитура Roto, москитные сетки, ламинация снаружи (цвет в соответствии с паспортом проекта), установка «под ключ».
Дверь входная: ПВХ со стеклом Rehau doors 70мм либо металлическая Термо Профи с терморазрывом установка «под ключ».
Дверь на террасу - ПВХ, двухкамерный стеклопакет
Дополнительные опции:
- Двусторонняя ламинация окон, увеличение толщины профиля окон, использование безрамного остекления согласно паспорту проекта.
ВНУТРЕННЯЯ ОТДЕЛКА
Полы: OSB 22мм, гидроизоляция, полусухая стяжка 6см
Стены: Гипсокартон 12.5мм в 2 слоя
Потолки: без отделки
Отделка Санузлов:
стены - Влагостойкий гипсокартон 12.5мм
ЭЛЕКТРИЧЕСТВО
Скрытая разводка негорючим кабелем в ПВХ гофре;
Монтаж распределительного щита;
Монтаж УЗО (на мокрые точки) и автоматов (марки IEK или аналог);
5 точек на помещение (3 розетки, выключатель, освещение);
Отдельный усиленный вывод под эл. плиту на кухне;
Вывод освещения и установка розетки на террасу;
Сечения кабелей:
3,0×2,5 мм – розетки.
3,0×1,5 мм – выключатели.
3,0×4,0 мм – силовые линии.
Автоматы:
10А (2 группы), 16А (4группы), вводное УЗО, вводной автомат (Вводной автомат и УЗО в зависимости от подающейся мощности (220 или 380) на дом 25А или 40А)
Дополнительные опции:
- Увеличение количества точек на помещение
ОТОПЛЕНИЕ
Система отопления радиаторами.
Электрический котел Thermex Boss Wi-Fi (аналог с мощностью в соответствии с паспортом проекта).
Обвязка котельной - армированный полипропилен открытого монтажа;
Разводка по дому - «скрытая» разводка трубами из сшитого полиэтилена в термоизоляционной защите. Система отопления включает в себя: фитинги, крепления, краны, мех. фильтр и пр.,
Монтаж радиаторов отопления согласно паспорта проекта «под ключ».
Можно дополнить, либо заменить на:
- Тёплый пол (жидкостный) по всей площади дома;
Система теплого пола включает в себя: трубы - сшитый полиэтилен, сетка, крепеж, подложка фольгаизол, коллекторная группа с расходомерами и пр. «под ключ» согласно проекта.
ВОДОСНАБЖЕНИЕ И КАНАЛИЗАЦИЯ
Обвязка ХВС и ГВС в тех. помещении - армированный полипропилен открытого монтажа;
Установкой циркуляционного насоса (гвс) с выводом на бойлер 150л
Разводка по дому - скрытая разводка трубами из сшитого полиэтилена в термоизоляционной защите;
Выводы на все «мокрые точки»: унитаз, раковины, душ/ванну (с подключением по проекту), посудомоечную и стиральную машину.
Канализация внутренняя: трубы ПВХ 50мм и 110мм в вспененном утеплителе, фитинги, крепления, выводы под все «мокрые точки» «под ключ» с вводом в эксплуатацию.
Монтируется под основанием дома на кронштейнах.
Дополнительные опции:
- Вывод поливочного крана на улицу
ВЕНТИЛЯЦИЯ
Приточно-вытяжная система.
Приток - через клапана инфильтрации воздуха;
Отток - через вентиляционные выходы;
Воздуховод: пластиковый, гофра алюминиевая;
Продухи для чердачного помещения;
В стоимость не включены и рассчитываются отдельно
Внешние инженерные коммуникации на вашем участке:
СКВАЖИНА
Бурение на воду, траншея до дома от 5м; трубы, насос скважинный, фитинги, крепления, трос, краны, реле давления, гидроаккумулятор, фильтр грубой отчистки, «под ключ» с вводом в эксплуатацию.
Дополнительные опции:
- Бурение «на известняк»;
- Вынос всего вспомогательного оборудования и устройство кессона.
СЕПТИК
Станция биологической очистки Топас или аналог по проекту;
Трубы ПВХ 110мм с земляными работами, траншея от 5м.п.
«под ключ» с вводом в эксплуатацию.
Внутренние инженерные коммуникации
для проекта SCANDI-80
Внешние инженерные коммуникации
Расчет за наличные или в ипотеку?
На какой номер телефона отправить вам предложение от которого сложно отказаться?

Заполните форму ниже. Ваш персональный менеджер свяжется с вами в ближайшее рабочее время и поможет определиться с дизайном проекта, рассчитает стоимость под ваш проект и расскажет про все этапы работы
NEST HOUSE
Офис в Москве:
г. Москва, ул. Бутлерова, д. 17
БЦ "NEO GEO", метро Калужская
Ежедневно с 10:00 до 18:00